龙东大道
Longdong Avenue
ShangHai | Gu Chen Design

|案例说明Case description
本案是三代同堂的幸福之家,男主人从事房地产工作,因此希望每个空间的规划都能恰到好处。同时,夫妻俩都是追求生活品质的人,他们不仅对细节有着严格的要求,更愿意亲力亲为,与设计师深入交流,共同碰撞出创意的火花,最终实现一个精致、优雅、从容的法式休闲风住宅。
This is a happy home for three generations. The male owner works in real estate. He hopes that every space can be just right. Both husband and wife pursue quality of life. They not only have strict requirements for details, but also are willing to do it themselves. After in-depth communication with the designer, they finally realized a refined, elegant and calm French leisure style residence.

设计师将住宅一楼改造成挑高LOFT形式,渐进形式打造阶梯结构。在保证居住感受的同时,空间比例更加稳定平衡。色彩上,整体以大面积白色铺陈,搭配水墨、深胡桃等复古色提升空间氛围感,营造古朴自然、轻松自在的理想之家。
The designer transformed the first floor of the residence into a high loft style, and gradually created a stepped structure. While ensuring the living experience, the spatial proportion is more stable and balanced. The overall color is laid out in a large area of white, matched with retro colors such as ink and dark walnut to enhance the spatial atmosphere. Create a simple, natural, and relaxed atmosphere.
屋主诉求:
1、喜欢法式休闲
2、厨房跟卧室朝南,修改布局让老人房空间更宽敞,增加一个衣柜
3、南面二楼层高 4.2 米,隔两层减掉楼板层高不到 2 米太低,一层又太高,希望能做调整
4、增加一个独立的多功能书房
Homeowner’s demands:
1. Like French casual
2. The kitchen and bedroom face south. Modify the layout to make the elderly room more spacious. Add a wardrobe
3. The second floor on the south side has a floor height of less than 2 meters after subtracting the floor slab. The first floor is too high. I hope it can be adjusted
4. Add an independent multi-functional study room
户型改造:
1、错层结构导致空间利用率不是很高。将一楼楼面整体下降40公分,楼上加出来一层,变成两个大套间
2、增加了一个书房套间,平时有客人来也可以住这里
Homeowner’s demands:
1. The split-level structure makes space utilization not very efficient. The entire first floor floor was lowered by 40 centimeters, and an additional floor was added upstairs. Become two large suites
2. Add a study suite where guests can stay

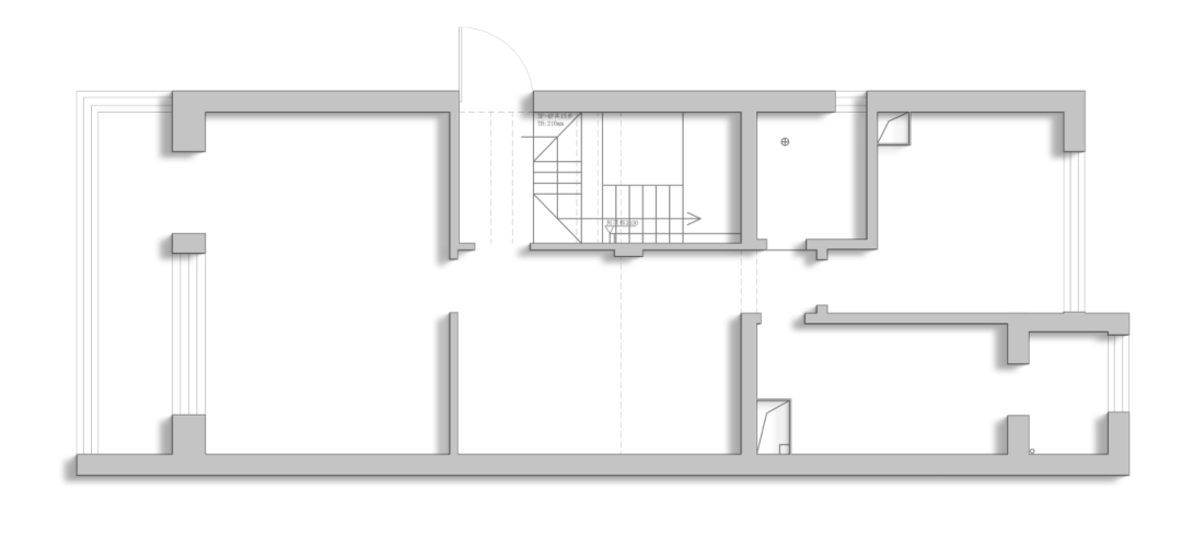
一楼结构图

一楼布置图
| 客厅 Living room 「艺术轻绘,重塑高级松弛美学空间」

步入客厅,整体奶白色让人顷刻间便放下戒备,勾起心底的柔软。复古重色系点缀其中,又为空间增添了安全感。
Entering the living room, the overall milky white makes people feel soft. The retro heavy colors dotted in it add a sense of security to the space.


贝壳沙发,线条柔和,自带休闲法式的松弛感。
The shell sofa has soft lines and brings a French style of leisure and relaxation.


※阳光挥洒,更显温柔。
It's even more gentle when the sun shines.

左右两侧墙壁布局相互映衬,又各具特色,在弧形垭口、简约的雕花元素以及简约线条的衬托下,呈现出轻盈舒适的美感。
The layout of the walls on the left and right sides complement each other, and each has its own characteristics. The curved doorway, simple carved elements and simple lines present a light and comfortable beauty.


高耸的立柱结构、气势磅礴的画作,让人犹如踏入蔚然大观的宫殿,心旷神怡。
The towering column structure and magnificent paintings make people feel like they are stepping into a magnificent palace.


简约嵌入式壁炉,点缀整个空间的视觉美态,营造生活的典雅气质。
The simple built-in fireplace embellishes the entire space and creates an elegant atmosphere.

长虹玻璃收纳柜、艺术摆件等,为空间增添时尚品味。
Changhong glass storage cabinets, art ornaments, etc. add fashion to the space.

这方大理石花纹茶几如同海边斑斓的鹅软石。玻璃展示柜像波光粼粼的海水。光着脚丫踩在地毯上,就像在沙滩上。真的太舒适了。
This marble coffee table is like the colorful pebbles on the seashore. The glass display cabinet is like the sparkling sea water. Walking barefoot on the carpet is like walking on the beach.

※追《庆余年》搭配高音质音响,简直就是视听盛宴。
Watching "Qing Yu Nian" with high-quality audio is simply an audio-visual feast.


转角处摆放水滴摆件,与空间的暖调形成对比。不仅柔化了转角带来的生硬感,也让色彩不再平淡。
Water drop ornaments are placed at the corners, which contrast with the warm tones of the space. It not only softens the harshness brought by the corners, but also makes the colors no longer bland.


一眼望去,有鬼斧神工之感,合理规划布局,既保留了客厅的开阔感,又增加了每个空间的实用性。
At first glance, it feels like a work of art. The reasonable layout not only retains the open feeling of the living room, but also increases the practicality of each space.

楼梯处的立柱,给客厅吊顶处以支撑,增加弧形门厅造型,让这个空间也不再单调。
The columns at the staircase support the living room ceiling, enhancing the shape of the curved foyer and enriching the spatial hierarchy.

※一步一景,渐入佳境。
With every step, the scenery becomes better and better.


罗马柱托起二楼隔层结构,妥妥的中流砥柱。
Roman columns support the mezzanine structure on the second floor.

※这个角度拍照也很美。
This angle is also beautiful for taking photos.

二楼格子窗设计,将艺术感氛围拉满。
The lattice window design on the second floor creates an artistic atmosphere.
| 餐厅 Dining room 「放松自然,用心感受每一餐」

餐桌并未完全放置于隔层之下,摒弃压抑感。餐厅灯犹如两个可爱的探照灯,为用餐增添乐趣。
The dining table is not completely placed under the compartment to reduce the sense of oppression. Two lovely searchlights in the restaurant add fun to dining.


选用透明亚克力支撑的餐桌设计,既增加了空间的通透感,又彰显了艺术品味。
The dining table is supported by transparent acrylic, which is both transparent and artistic.

餐厅与电梯间设计了弧形垭口,弱化了压抑感,同时增加了空间的层次感。
Curved doorways are designed between the restaurant and the elevator room to weaken the edges and corners and increase the spatial level.


餐边橱与整体风格保持统一,小碎花设计,为空间的松弛感加持。
The small floral design of the sideboard blends into the overall design, adding a sense of relaxation.

可移动插座轨道,给生活做减法,小家电的使用也更加灵活自如。
The movable socket track makes the use of small appliances more flexible and free.

※隐藏灯带,将氛围感拉满。
Hidden light strips enhance the atmosphere.
| 老人房 Elderly room 「安全舒适,老人自在而居」

老人房在一楼,阳光充足。简单的复古雕花,质感满满。
The elderly room is on the first floor, with plenty of sunlight. Simple retro carvings are full of texture.

拉开窗帘就可以看到优美的室外风景,老人的心情也会更舒畅。
Opening the curtains will allow you to see the beautiful scenery, and the elderly will feel more relaxed.

选择带有扶手的床头,老人起身也会更方便。
There are handrails at the head of the bed, which makes it convenient for the elderly to get up.

复古床头柜也是圆角的设计,避免磕碰。
The retro bedside table also has rounded corners to avoid bumps.

格调原木台面,方便放置书籍等物品。看书累了,也可以追追剧,放松放松。
The stylish wooden tabletop is convenient for placing books and other items. When you are tired of reading, you can watch TV series to relax.
| 厨房 Kitchen 「简约配色,烹调多彩美食」


上白下黑的厨房配色,干净利落,不失高级。
The kitchen is white on top and black on the bottom. It is clean and neat, yet classy.
| 楼梯间 Staircase 「步步心动,走进内心深处」

楼梯间的吊灯兼具美观和实用性,灯光明亮,照亮每一个温情的夜晚。
The chandelier in the stairwell is bright, both beautiful and practical, illuminating every night.

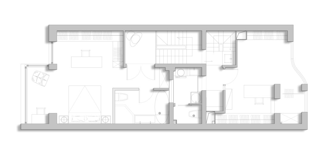
二楼结构图

二楼布置图
| 多功能房 Multi-purpose room 「一房多用,生活更灵动」


二楼多功能房集学习、娱乐、收纳等多种功能为一体,灵活且实用!
The multifunctional room on the second floor integrates multiple functions such as study, entertainment, storage, etc. It is flexible and practical!

同时这里也是放松独处的空间,坐在这里,可以随意放空思绪。
This is also a space for relaxation and solitude. You can sit here and let your mind wander.

※无主灯设计,减少顶面带来的压抑感。
The design without main light reduces the oppression of the top surface.

即使是小小的办公区,也是精致感十足。
Even a small office area is full of refinement.


充分利用每一寸空间,打造专属洗衣区,省力便捷,实现动线的最简化。
The traffic flow is simplified, and the exclusive laundry area is labor-saving and convenient.

水纹玻璃砖小隔断的设计,与透景小窗交相辉映,简直美翻了。
The water-patterned glass bricks are used to create a small partition, which complements the small transparent windows.

置物架是在日常收纳和高颜值的魔法里,寻找一个平衡点,为空间增添气质。
The high-value storage rack finds a balance between daily storage and durability.

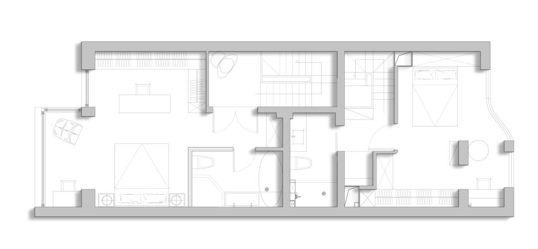
三楼结构图

三楼布置图
| 女孩房 Girls room 「甜美梦幻,守护心中永远的女孩」

这是每个女孩都梦想的公主房吧,清新低饱和度的马卡龙粉色,并没有占据太大的面积,使得空间清新而不甜腻。
This is the princess room that every girl dreams of! The fresh and low-saturation macaron pink does not occupy too much space, and the space is fresh and not sweet.


※住进去都不想长大!
Don't want to grow up here!


弧形垭口搭配拱形门,柔和交织梦幻童话。
The curved doorway and arched door are like a soft and interwoven dreamlike fairy tale.


入门小玄关处放置了复古风玄关柜,上方暖色灯光倾泻而下,极具艺术美感。
A retro-style entrance cabinet is placed at the entrance, with warm lights pouring down from above.

一整面墙的收纳,喜欢的裙子、首饰、包包都放得下。
A whole wall is used for storage. I can put my favorite skirts, jewelry, and bags.

收纳柜作为背景墙,可增加储物空间,隐藏灯带为珍藏摆件增加浪漫的氛围感。
The storage cabinet can be used as a background wall to increase storage space. The hidden light strip adds a romantic atmosphere to the collection of ornaments.

进入拱形门,是一方独立的学习、办公空间,这里没有过多的装饰,营造心灵寄托的安静空间。
Entering the arched door is an independent study and office space. There is no excessive decoration here, it is a quiet space.
| 主卧 Bedroom 「随心而居,松弛而有格调」


主卧的设计并不固定在某种风格,而是随心混搭,反而增加了自由的味道。
The style of the master bedroom is a free and casual mix and match.


背景墙与床头的色彩,展现出婉约大方的姿态,清晨睁开眼的瞬间就能感受到满屋的热情!
The background wall and the bedside are elegantly colored. The moment you open your eyes in the morning, you can feel the warmth of the room!

充分利用拐角处,设计了L型衣帽间来增加储物空间。
The L-shaped cloakroom makes full use of the corners to increase storage space.


此处安放的小长桌,犹如用石头、木块临时搭建的桌子,野趣十足。
The small long table placed here looks like a table temporarily built with stones and wood blocks, full of wildness.

主卫用拱形轮廓,搭配水波纹玻璃隔开,浪漫有情调。
The master bathroom has an arched outline and is separated by water ripple glass.

城墙纹路的石膏边条,加上圆球造型吊灯,复古味十足。
The plaster edging with the pattern of city walls and the spherical chandelier give it a retro feel.

磨砂感壁纸,丝绸感床头,让空间更具质感。几何创意造型床头柜,让空间格调满满。
Frosted wallpaper and silky headboard add texture. Geometric creative bedside tables make the space full of style.

时尚精致的梳妆角,是美丽蔓延的心动角。
The stylish and exquisite dressing corner is a heart-warming corner where beauty spreads.

※弧形垭口搭建出安静放松的角落。
The curved door creates a quiet and relaxing corner.

一个人窝在这个角落,与云朵般舒适的沙发相伴,尽情追寻内心的自在。
Nestled in this corner alone, accompanied by a sofa as comfortable as a cloud, one can pursue the inner freedom.

拱形金属门仿若时空之门,为空间增添神秘的色彩。
The arched metal door is like a door into time and space, adding a touch of mystery.
| 主卫 Bathroom 「完美布局,打造精致高级感」

定制台盆及收纳柜,颜值与实用并存,还有足够大的浴缸,实现泡澡自由,疗愈身心。
The custom-made basin and storage cabinet are both beautiful and practical. The large bathtub allows you to take a bath freely and heal your body and mind.


精妙的布局,就是既要又要,有大大的浴缸,还要有独立的淋浴房。
The exquisite layout requires both a large bathtub and a separate shower room.
| 作品信息 Information 「设计说明」
项目地点 | 中国上海
Project location
项目小区 | 龙东大道
Project housing estate
设计团队 | 谷辰设计
Design team
项目类型 | 家装
Project type
项目风格 | 休闲混搭风
Project style
项目面积 | 260㎡
Project area

| 热文推荐 POPULAR ARTICLE RECOMMENDATION

联系我们
TEL:021-6091-0001
15618671206
上海
上海市徐汇区石龙路345弄28号C栋
无锡
无锡市滨湖区华邸国际大厦A幢23B01