静安·印
Jing'an Yin
ShangHai | Gu Chen Design

|案例说明 Case description
于繁华中心处写就静安区封面,构筑品质典范人居。静安·印坐落于上海市静安区的繁华之地,被四大顶级商圈环绕,是无法复刻的城心,其室内设计由谷辰担纲。
Jing'an Yin is located in the prosperous area of Jing'an District, Shanghai, surrounded by four top business districts. It is an unrepeatable city center. The interior design of its house is undertaken by Gu Chen.
设计的核心在于对细节的精心打磨和对氛围感的巧妙营造。在有限的空间内,设计师需要巧妙地规划合理的动线和整体布局,以满足居住者的生活需求,同时实现空间的最大化利用。
The core of design lies in the careful polishing of details and the clever creation of atmosphere. In a limited space, designers need to cleverly plan reasonable traffic lines and overall layout to meet the living needs of residents while maximizing the use of space.

本案中设计师从建筑经典中提炼“拱”形之美,以现代之笔重塑,拆除所有能拆的非承重墙,将次卧、阅读区的小空间与客厅打通,打造全新开放式格局,让局促的空间更显大气。用心处理的色彩与材质,为居住者提供了一个充满艺术气息和生活情调的家。
In this case, the designer extracted the beauty of the "arch" shape from the classic architecture. Reshaped it with a modern style. All non-load-bearing walls that could be removed were demolished. The small space of the second bedroom and reading area was connected with the living room. A new open layout was created. The cramped space is made more grand. The carefully processed colors and materials provide residents with a home full of artistic atmosphere and life style.

原始户型图
屋主诉求:
1、希望进行结构调整,使整个空间布局更加合理,看起来也更宽敞
2、希望设计风格上具备专属特色
Homeowner’s demands:
1. Make structural adjustments to make the entire space layout more reasonable and spacious.
2. The design style has unique characteristics.

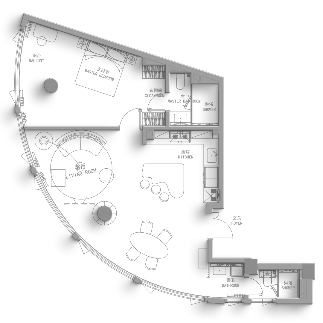
平面布置图
户型改造:
1、客厅的结构柱无法敲除,所以将它设计成发光柱,上面摆上手办,让柱子融入空间
2、厨房吊顶使用曲线样式,如流水般自然过渡。配合上灯带,很好的过渡了入户上口的折角部分,看起来更自然
3、沙发背后格栅配上法式休闲沙发,软硬冲突、木头和石材的对比感,凸显空间设计感,很好的融合到了一起
4、很多储物空间满足了大量的储物需求。特别是对于独居的住户来说,空间能一直保持整洁的状态
5、开放式厨房,布局和动线非常合理。能让偶尔来家里做客的朋友们有施展空间
Homeowner’s demands:
1. The structural column in the living room cannot be knocked down, so it is designed as a luminous column, with figures placed on it to blend the column into the space.
2. The kitchen ceiling uses a curved style, with a natural transition like flowing water. Combined with the light strip, it transitions the corner of the entrance well, making it look more natural.
3. The grille behind the sofa is matched with a French leisure sofa. The conflict between soft and hard, the contrast between wood and stone, highlight the sense of space design and are well integrated.
4. A lot of storage space meets a lot of storage needs. Especially for residents living alone, the space can always be kept tidy.
5. The open kitchen has a very reasonable layout and flow, which can give occasional guests plenty of room to display their talents.
| 客厅 Living room 「层次鲜明,这个家不简单」

刚柔并济的客厅设计,将硬朗线条与弧形元素完美结合,刚中带柔,打造与众不同的现代风格客厅。
The living room is a perfect combination of hard lines and curved elements. The combination of hardness and softness creates a unique modern style living room.

沙发背景墙采用木质格栏板与大理石饰面结合,增加层次感,让空间更具纵深感。加之木地板的加入,另客厅空间稳重且高级。
The sofa background wall is made of wooden lattice panels and marble finishes, which adds a sense of layering and depth. The wooden floor makes the living room stable and high-end.

灰色贝壳沙发搭配烤漆黑茶几、灰色地毯,营造轻松的氛围,抬步入室,尽显温柔。
The grey shell sofa, black lacquered coffee table and grey carpet create a relaxing atmosphere. Walking into the room, you will feel gentle.

黄金比例配色,高级感+空间感信手拈来!
The color matching is in golden ratio. The sense of luxury and space is at your fingertips!

拆不掉的柱子被精心包裹,改造成手办墙,让爱好有处安置,为生活提升幸福感。
The pillars that cannot be removed are carefully wrapped and transformed into a figurine wall, giving hobbies a place to rest and improving the happiness of life.

拆不掉,就站C位吧!会发光的柱子,仿佛是穿越未来的时空隧道。
The glowing pillars are like a time tunnel through the future. If you can't take them down, just stand in the center!

※以光为引,给家不一样的质感。
Using light as a guide gives this home a different texture.
| 餐厅 Dining room 「通透清朗,优雅不止一点点」

餐厅区散发着简约又温暖的味道,透明餐椅让空间更加通透,就像一杯清凉的白开水,让人舒畅又清新。
The restaurant area exudes a simple and warm atmosphere. The transparent dining chair is like a glass of cool boiled water, making people feel comfortable and refreshed.

窗帘的遮光度刚刚好,温暖透光下的空间色调,仿佛一杯暖心香醇的咖啡,散发着诱人的香气。
The curtains have just the right amount of light blocking. The warm tones under the light are like warm and mellow coffee, exuding an alluring aroma.

※微光映射,延伸出温暖的氛围。
The glimmer extends a warm atmosphere.

石材纹餐桌、亚克力透明餐椅、金属餐具……不同材质的碰撞间,妙趣横生。
Stone-patterned dining tables, transparent acrylic dining chairs, metal tableware… the collision of different materials creates a lot of fun.
| 卧室 Bedroom 「格调空间,专属你的生活态度」

利用色彩搭配跳跃出空间层次感,灰白作为主题色,营造极强的高级氛围感。
Use color matching to create a sense of spatial hierarchy. Use gray and white as the theme color to create a high-end atmosphere.

大飘窗引入阳光,让空间暖意倍增。
The large bay window brings in sunlight, doubling the warmth of the space.

背景墙通过极简的造型与灯光设计,打破无趣和沉闷。
The background wall adopts a minimalist shape and lighting design to break the boredom and dullness.

一抹暖色调灯光,灰色哑光墙面的细腻质感显露无疑。
The warm lighting reveals the delicate texture of the grey matte wall.

格子布艺沙发点缀空间,让卧室更加舒适高雅,且不失温柔气质。
The plaid fabric sofa embellishes the space, making the bedroom more comfortable and gentle.


用隔板进行垂直收纳,在有限的空间兼顾收纳与展示性,让家的“平方变立方”。
Use partitions for vertical storage. Take into account both storage and display in a limited space. Turn this home's square into a cube.
| 厨房 Kitchen 「打破界限,美食与社交兼得」

打破空间束缚,告别孤独烹饪,打造开放式厨房。将波浪造型的岛台纳入其中,与上方的流水造型吊顶相互呼应,浑然一体。
An open kitchen is built to break the space constraints and get rid of lonely cooking. The wave-shaped island counter echoes the flowing water-shaped ceiling above.

深蓝的外表仿佛披上一层雾面的纱,因为灰度的融合,让空间更加的柔和。
The dark blue exterior seems to be covered with a layer of misty gauze. The fusion of gray makes the space softer.
| 卫生间 Bathroom 「实用主义,便利藏于每个细节」


三段式干湿分离卫生间,更加干净整洁。大理石台面搭配超大镜子,高级感十足。
The three-section dry and wet separated bathroom is cleaner and tidier. The marble countertop is matched with an oversized mirror, which is full of luxury.

靠近淋浴区一侧增设收纳柜的设计真的很棒,加上灯带,也很有氛围感。
A storage cabinet is added near the shower area. This design is really great! The light strip also adds to the atmosphere.
| 作品信息 Information 「设计说明」
项目地点 | 中国上海
Project location
项目小区 | 静安·印
Project housing estate
设计团队 | 谷辰设计
Design team
项目类型 | 工装
Project type
项目风格 | 现代混搭风
Project style
项目面积 | 80㎡
Project area

| 热文推荐 POPULAR ARTICLE RECOMMENDATION

联系我们
TEL:021-6091-0001
15618671206
上海
上海市徐汇区石龙路345弄28号C栋
无锡
无锡市滨湖区华邸国际大厦A幢23B01